Home
Bauvorhaben Goethestraße 48
Service
Wir über uns
Impressum
Das Grundstück
Kellergeschoss
Erdgeschoss
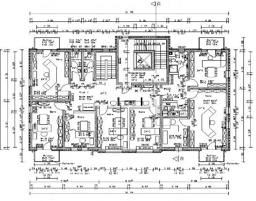
1. Obergeschoss
2. Obergeschoss
Dachgeschoss
Pressemitteilungen
Das 1. Obergeschoss
Im ersten Obergeschoss entstehen, wie bereits im Erdgeschoss, Büroräume.