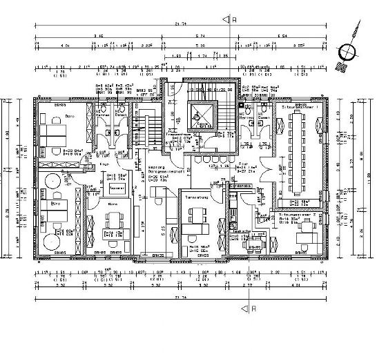
Das Erdgeschoss

Im Erdgeschoss entstehen Büroräume, welche nach den Wünschen der Mieter konzipiert wurden.