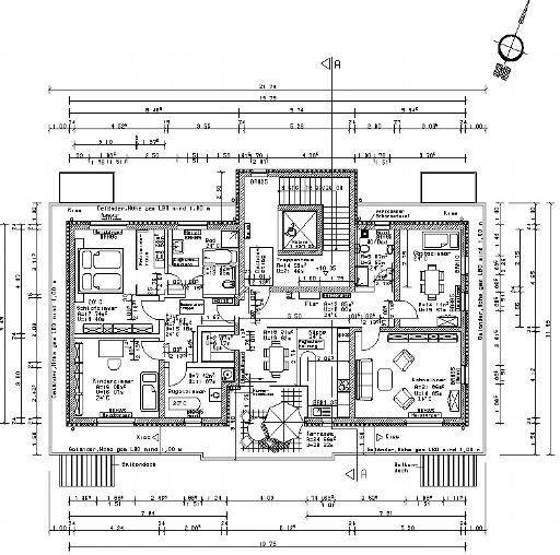
Das Dachgeschoss

Im Dachgeschoss wird eine Penthouse Wohnung auf ca. 130,0 qm inkl. Dachterrasse entstehen.